€150 000

Otrajā stāvā ir dzīvokļi Nr 4, 5 un 6.
Pārdodas visi trīs dzīvokļi
Kopējā platība: 155.1m2
4.dz - vienas istabas dzīvoklis ar 35.5m2
5.dz - divu istabu dzīvoklis ar 50.7m2
6.dz - trīs istabu dzīvoklis ar 68.9m2

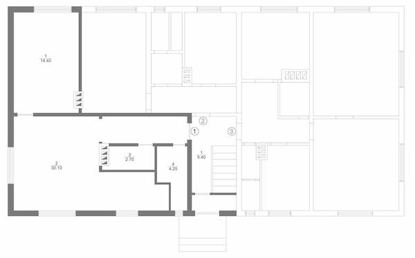
Pirmajā stāvā ir dzīvokļi Nr 1, 2 un 3.
Pārdodas divu istabu dzīvoklis Nr 1.
Kopējā platība: 51.5m2

Plāniem ir informatīva nozīme.
Loading Gallery ...
Īpašums atrodas pretī parkam, kurā ir labiekārtots bērnu laukumiņš. Stacija un veikals 5 min gājiena attālumā. Pretī veikalam ir armēņu restorāns ar izcilu virtuvi.
Līdz jūrai 7 minūtes.
Tikai 10 minūšu brauciena attālumā ir Rimi, Maxima un Kauguru tirgus. Netālu ir vairākas skolas (Pumpuri, Sloka). Tuvākā poliklīnika atrodas Kauguros un Dubultos, blakus ir rehabilitācijas centrs Vaivari.
Ir nojume mašīnai un plašs, iekopts dārzs.
Īpašums ir celts 1980 gadā, koka divstāvu konstrukcija. Jumts nomainīts pirms septiņiem gadiem, kopā ar tā maiņu tika atjaunoti skursteņi.
Īpašumam ir divi īpašnieki un viens īpašnieks pārdod visas savas domājamās daļas.
Īpašums sastāv no 6 dzīvokļiem, no tiem pārdodas 4 dzīvokļi ar kopējo platību 206m2 un zeme 1556m2
Pārdodas viss otrais stāvs - 4.dz, 5.dz un 6.dz, un 1. dzīvoklis no pirmā stāva.
Visas domājamās daļas ir atrunātas, atzīmētas plānā un ar līgumu pievienotas Zemes grāmatā.
Māja nav vēstures piemineklis.
Aptuveni pirms 10 gadiem, visi dzīvokļi tika izremontēti. Tika nomainīti visi logi un katrā dzīvoklī iekārtota autonoma ūdens sildīšana, pilsētas ūdens un kanalizācija. Faktiski, visi dzīvokļi sagatavoti ar visu nepieciešamo iedzīvei (veļasmašīnas, santehnika, dušas, virtuve, mēbeles.)
Šobrīd otrais stāvs tiek katru gadu izzīrēts vasaras mēnešiem, tādejādi atpelnot ieguldītos līdzekļus.
Šis īpašums, pateicoties lokācijai, ir perspektīvs investīciju objekts. Māja uz doto brīdi ir dzīvojama, bet ilgtermiņā mājai ir nepieciešami ieguldījumi. Dzīvokļus var arī sagatavot un piedāvāt izīrēšanai Airbnb vai citās platformās.
Mājai ir liela un plaša dārza teritorija (1500m2), kurai radoši cilvēki var atrast interesantu pielietojumu.
Iespējams, kādai lielai ģimenei šī māja ir fantastiska iespēja “aizbēgt” no pilsētas un baudīt savu mieru un harmoniju pasakainajā Jūrmalā.